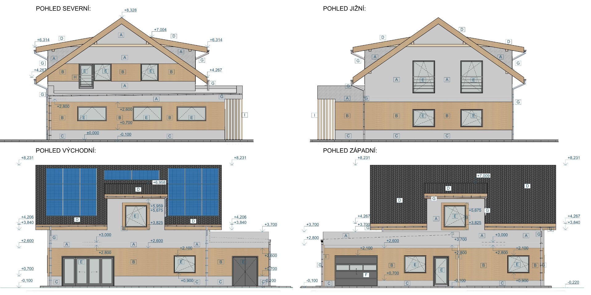
Naše práce
Každý pasport začíná osobní návštěvou objektu a jeho přesným zaměřením. Následně vypracujeme technický popis stavby, výkresovou dokumentaci a vše zkompletujeme do přehledného výstupu. Výsledkem pasportu stavby je dokumentace skutečného stavu objektu, která se zpracovává zejména v případech, kdy k dané stavbě chybí původní projektová dokumentace, nebo když nebyla v minulosti řádně povolena. Pasport slouží jako podklad pro jednání se stavebním úřadem – například při dodatečném povolování stavby, řízení o odstranění stavby, změně údajů v katastru nemovitostí nebo legalizaci některých stavebních úprav (pokud to stavební zákon umožňuje).
Dokument je rovněž užitečný při převodu (prodeji) nemovitosti, kdy kupující nebo notář vyžadují doložení stavu objektu. V některých případech jej může požadovat i banka při sjednání hypotečního úvěru. Pasport může být také podkladem pro záměr rekonstrukce, modernizace nebo zateplení objektu.
Je důležité zdůraznit, že samotný pasport stavby není náhradou stavebního povolení a nelegalizuje automaticky černou stavbu. Může však být prvním krokem v procesu dodatečného povolení, pokud stavba splňuje podmínky dané stavebním zákonem.
Bytové stavby

Dřevostavby

Rodinné budovy


Roubenky


DOTACE - ZATEPLENÍ


PASPORT S 3D VIZUALIZACÍ


